UA | RU
Каталог товаров
0500353000
Телефоны:
Время работы
  • На время войны работаем без выходных. Прием заказов и консультации по сервису:
  • с 9.00 до 21.00
  • Пн, Вт, Ср, Чт, Пт
  • с 10.00 до 20.00
  • Сб, Вс
E-mail
Мы в соцсетях
Перейти в контакты
0 0
Каталог
Главная
Закладки
0
Сравнить
0
Контакты

VAILLANT Двоконтурний газовий димохідний котел atmoTEC pro VUW 240/5-3 опалення 24 кВт, ГВП 24 кВт (0010048160)

Производитель: VAILLANT Код Товара: 108179-01 Артикул: 0010048160
Все о товаре
Описание
Характеристики
Вопросы0
В наличии:
55 831.20 грн.
Наличие на складах
  • Центр 3
Купить этот товар в 1 клик:
VAILLANT Двоконтурний газовий димохідний котел atmoTEC pro VUW 240/5-3 опалення 24 кВт, ГВП 24 кВт (0010048160)
55 831.20 грн.
Описание

Двоконтурний котел atmoTEC pro VUW INT

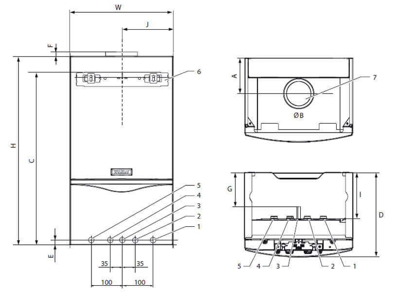
двоконтурний котель atmotec pro vuw int razmery

Позначення:

1. Зворотна магістраль контуру опалення (G 3/4”)
2. Вхід холодної води (G 3/4”)
3. Підключення газопроводу (15 мм)
4. Вихід гарячої води (G 3/4”)
5. Контур опалення, що подає магістраль (G 3/4”)
6. Кронштейн для кріплення на стіну
7. Підключення димоходу

Таблиця розмірів двоконтурного казана atmoTEC pro VUW INT

двоконтурний котель atmotec pro vuw int технічні harakteristiki

Таблиця характеристики двоконтурного казана

atmoTEC pro VUW INT

двоконтурний котель atmotec pro vuw int1 технічні harakteristiki

Особливості:

  • Газовий настінний опалювальний апарат з природним відведенням продуктів згоряння в димар
  • Плавне регулювання потужності за допомогою газового клапана з вбудованим кроковим двигуном
  • Середній за опалювальний сезон КПД 93%
  • Вбудована комунікаційна шина eBus
  • Опалення та приготування гарячої води (за допомогою вбудованого пластинчастого теплообмінника)
  • Можливість встановлення у житловій зоні
  • Мінімальний необхідний бічний зазор 20 мм, всі вузли доступні з лицевого боку
  • Вбудоване керування температурою гарячої води

Оснащення:

  • Пріоритетний перемикаючий клапан
  • Вбудований циркуляційний насос із ручним перемиканням ступенів
  • Розширювальний бак, автоматичний відвідник повітря, регульований байпас, запобіжний клапан.
  • Захист від заклинювання насоса та пріоритетного перемикаючого клапана при їх простої понад 23 роки
  • Можливість налаштування на часткову потужність в режимі опалення
  • Електронний розпал
  • Контроль стану та пошук несправностей на дисплеї за допомогою системи діагностики (DIA-System)

Характеристики
Характеристики
Wi-fi
Немає
Артикул
0010048160
Бренд
Vaillant
Вага (кг)
36
Вбудований бак ГВП
Немає
Виробник
Vaillant
Витрата газу (м³/год)
2.77
Габарити (В×Ш×Г, мм)
338 x 400 x 800
Гарантія (міс)
24
Діаметр підключення опалення (дюйм)
3/4
Кількість контурів
2
ККД (%)
91.7
Колір
Білий
Країна виробник
Словаччина
Матеріал теплообмінника
Мідь
Об’єм розширювального бака (л)
4
Опалювальна площа (м2)
250
Потужність (кВт)
24
Розташування
Навісний
Спосіб встановлення
Настінний
Тип виробу
Конвекційний
Тип димоходу
Димохідний (природна тяга)
Тип камери згорання
Атмо (відкрита)
Тип керування
Електронний (автоматичний)
Тип теплообмінника
Монотермічний
Тип тяги
Природна
Тиск газу min (мбар)
0.02
Вопросы и ответы
Добавьте вопрос, и мы ответим в ближайшее время.

Нет вопросов о данном товаре, станьте первым и задайте свой вопрос.

55 831.20 грн.