UA | RU
Каталог товаров
0500353000
Телефоны:
Время работы
  • На время войны работаем без выходных. Прием заказов и консультации по сервису:
  • с 9.00 до 21.00
  • Пн, Вт, Ср, Чт, Пт
  • с 10.00 до 20.00
  • Сб, Вс
E-mail
Мы в соцсетях
Перейти в контакты
0 0
Каталог
Главная
Закладки
0
Сравнить
0
Контакты

VAILLANT Котел газовий ecoCRAFT exclusiv VKK2806/3-E опалення 288 кВт (0010016465)

Производитель: VAILLANT Код Товара: 108640-01 Артикул: 0010016465
Все о товаре
Описание
Характеристики
Вопросы0
846 704.40 грн.
Наличие на складах
  • Центр 0
VAILLANT Котел газовий ecoCRAFT exclusiv VKK2806/3-E опалення 288 кВт (0010016465)
846 704.40 грн.
Описание

Котел конденсаційний ecoCRAFT exclusiv

Особливості

  • Конденсаційний газовий підлоговий опалювальний апарат
  • Модулююча горілка, діапазон потужності від 18,5% до 100%
  • Середній за опалювальний сезон КПД 110% (порівняно з неконденсаційними газовими котлами та при температурному режимі 40/30 С°)
  • Опалення та приготування гарячої води (у комбінації з ємнісним водонагрівачем)
  • Можливість використання повітря для горіння як із приміщення, так і ззовні.
  • Блок котла постачається повністю зібраним

Оснащення

  • Конденсаційний теплообмінник із спеціального сплаву
  • Модулююча горілка з попереднім примусовим змішуванням
  • Вбудована комунікаційна шина eBus
  • Можливість налаштування на часткову потужність для режиму опалення та нагріву бойлера
  • Електричний розпад та контроль за процесом горіння
  • Місце для вбудовування регулятора

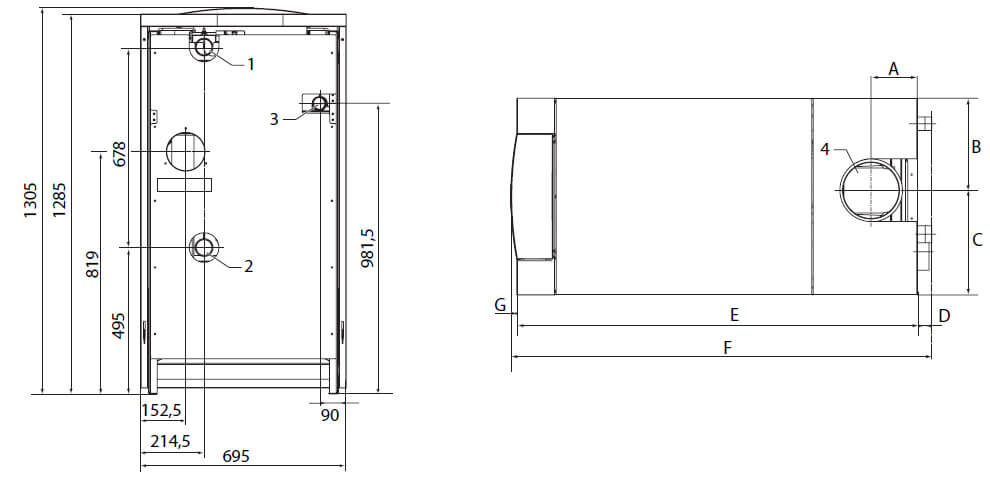
Креслення конденсаційного напольного котла ecoCRAFT exclusiv

kondensatsionny napolny kotel ecocraft exclusivrazmery

Позначення:

1. Подача магістраль контуру опалення (R2”)
2. Зворотна магістраль контуру опалення (R2”)
3. Підключення газопроводу (R 1 1/2”)
4. Підключення коаксіального димоходу

Таблиця розмірів конденсаційного котла ecoCRAFT exclusiv

kondensatsionny napolny kotel ecocraft exclusive технічні harakteristiki

Таблиця характеристик конденсаційного казана ecoCRAFT exclusiv

kondensatsionny napolny kotel ecocraft exclusiv1 технічні harakteristiki

Характеристики
Характеристики
Wi-fi
немає
WIFI модуль
Немає
Артикул
0010016465
Бренд
Vaillant
Вага (кг)
310
Виробник
Vaillant
Витрата газу (м³/год)
29.6
Витрата газу max (м3/год)
29.6
Габарити (В×Ш×Г, мм)
1550 x 700 x 1290
Гарантія (міс)
24
Діаметр підключення опалення (дюйм)
1 1/2
Кількість контурів
1
Колір
Білий
Країна виробник
Німетчина
Мінімальний тиск газу (бар)
0,006
Матеріал основного теплообмінника
Нержавіюча сталь
Матеріал теплообмінника
Нержавіюча сталь
Опалювальна площа (м2)
3000
Потужність (кВт)
294
Різьбове з'єднання (дюйми)
1 1/2
Розміри (Ш × В × Г), мм
1550 x 700 x 1290
Розташування
Підлоговий
Теплова потужність (кВт)
294
Тип виробу
Конденсаційний
Тип димоходу
Турбований (коаксіальний)
Тип камери згорання
Турбо (закрита)
Тип керування
Електронний (автоматичний)
ТИП КОТЛА
Конденсаційний
Тип розпалу
Електронний (автоматичний)
Тип тяги
Примусова
Тиск газу min (мбар)
0,006
Вопросы и ответы
Добавьте вопрос, и мы ответим в ближайшее время.

Нет вопросов о данном товаре, станьте первым и задайте свой вопрос.