UA | RU
Каталог товаров
0500353000
Телефоны:
Время работы
  • На время войны работаем без выходных. Прием заказов и консультации по сервису:
  • с 9.00 до 21.00
  • Пн, Вт, Ср, Чт, Пт
  • с 10.00 до 20.00
  • Сб, Вс
E-mail
Мы в соцсетях
Перейти в контакты
0 0
Каталог
Главная
Закладки
0
Сравнить
0
Контакты

VAILLANT Котел газовий ecoVIT exclusiv VKK 226 /4 INT опалення 23 кВт (0010007510)

Производитель: VAILLANT Код Товара: 108647-01 Артикул: 0010007510
Все о товаре
Описание
Характеристики
Вопросы0
199 743.60 грн.
Наличие на складах
  • Центр 0
VAILLANT Котел газовий ecoVIT exclusiv VKK 226 /4 INT опалення 23 кВт (0010007510)
199 743.60 грн.
Описание

Конденсаційний котел підлоговий ecoVIT exclusiv

Особливості

  • Конденсаційний газовий підлоговий опалювальний апарат
  • Модулююча горілка, діапазон потужності від 30% до 100%
  • Середній за опалювальний сезон КПД 109% (порівняно з неконденсаційними газовими котлами та при температурному режимі 40/30 С°)
  • Опалення та приготування гарячої води (у комбінації з ємнісним водонагрівачем)
  • Aqua-Сondens-System – використання теплоти конденсації під час роботи з водонагрівачем
  • Можливість використання повітря для горіння як із приміщення, так і ззовні.

Оснащення

  • Пальник із попереднім примусовим змішуванням
  • Можливість налаштування на часткову потужність для режиму опалення та приготування гарячої води
  • Вбудована комунікаційна шина eBus
  • Великий об'єм теплообмінника (100л)
  • Дві зворотні лінії системи опалення
  • Місце для вбудовування регулятора
  • Електронне запалювання та контроль за процесом горіння

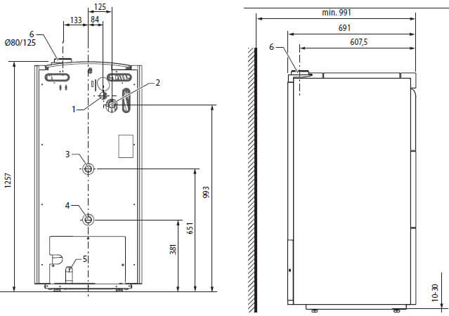
Креслення конденсаційного котла ecoVIT exclusiv

kondensatsionny napolny kotel ecovit exclusivrazmery1

Позначення:

1. Первинний теплообмінник із нержавіючої сталі
2. Вентиляторна горілка
3. Електромагнітний газовий клапан з покроковим регулюванням
4. NTС – датчики
5. Датчик тяги
6. Лінія, що подає
7. Високотемпературна зворотна лінія
8. Низькотемпературна зворотна лінія
9. Злив конденсату
10. Повітряний клапан

kondensatsionny napolny kotel ecovit exclusivrazmery2

Позначення:

1. Підключення газопроводу (R 3/4”)
2. Подає магістраль контуру опалення (Rp 1”)
3. Зворотна магістраль контуру нагрівання бойлера (Rp 1”)
4. Зворотна магістраль контуру опалення (Rp 1”)
5. Патрубок відведення конденсату
6. Підключення коаксіального димаря

Таблиця характеристик конденсаційного котла ecoVIT exclusiv

kondensatsionny napolny kotel ecovit exclusive технічні harakteristiki

Характеристики
Характеристики
Wi-fi
немає
WIFI модуль
Немає
Артикул
0010007510
Бренд
Vaillant
Вага (кг)
100
Вбудований бак ГВП
Немає
Виробник
Vaillant
Витрата газу (м³/год)
3.68
Витрата газу max (м3/год)
3.68
Габарити (В×Ш×Г, мм)
691 x 570 x 1275
Гарантія (міс)
24
Діаметр підключення опалення (дюйм)
3/4
Кількість контурів
1
ККД
109
ККД (%)
109
Колір
Білий
Країна виробник
Німетчина
Мінімальний тиск газу (бар)
0.012
Матеріал основного теплообмінника
Нержавіюча сталь
Матеріал теплообмінника
Нержавіюча сталь
Об’єм розширювального бака (л)
7
Опалювальна площа (м2)
250
Потужність (кВт)
22
Продуктивність (л/хв)
??}15.1 при температурі 30
Продуктивність ГВП (л/хв)
??⊭15.1 при температурі 30
Різьбове з'єднання (дюйми)
3/4
Розміри (Ш × В × Г), мм
691 x 570 x 1275
Розташування
Підлоговий
Теплова потужність (кВт)
22
Тип виробу
Конденсаційний
Тип димоходу
Турбований (коаксіальний)
Тип камери згорання
Турбо (закрита)
Тип керування
Електронний (автоматичний)
ТИП КОТЛА
Конденсаційний
Тип розпалу
Електронний (автоматичний)
Тип теплообмінника
Монотермічний
Тип тяги
Примусова
Тиск газу min (мбар)
0.012
Вопросы и ответы
Добавьте вопрос, и мы ответим в ближайшее время.

Нет вопросов о данном товаре, станьте первым и задайте свой вопрос.