UA | RU
Каталог товаров
0500353000
Телефоны:
Время работы
  • На время войны работаем без выходных. Прием заказов и консультации по сервису:
  • с 9.00 до 21.00
  • Пн, Вт, Ср, Чт, Пт
  • с 10.00 до 20.00
  • Сб, Вс
E-mail
Мы в соцсетях
Перейти в контакты
0 0
Каталог
Главная
Закладки
0
Сравнить
0
Контакты

VAILLANT Котел газовий ecoVIT exclusiv VKK 366/4 INT опалення 36 кВт (0010007518)

Производитель: VAILLANT Код Товара: 108651-01 Артикул: 0010007518
Все о товаре
Описание
Характеристики
Вопросы0
252 375.60 грн.
Наличие на складах
  • Центр 0
VAILLANT Котел газовий ecoVIT exclusiv VKK 366/4 INT опалення 36 кВт (0010007518)
252 375.60 грн.
Описание

Конденсаційний котел підлоговий ecoVIT exclusiv

Особливості

  • Конденсаційний газовий підлоговий опалювальний апарат
  • Модулююча горілка, діапазон потужності від 30% до 100%
  • Середній за опалювальний сезон КПД 109% (порівняно з неконденсаційними газовими котлами та при температурному режимі 40/30 С°)
  • Опалення та приготування гарячої води (у комбінації з ємнісним водонагрівачем)
  • Aqua-Сondens-System – використання теплоти конденсації під час роботи з водонагрівачем
  • Можливість використання повітря для горіння як із приміщення, так і ззовні.

Оснащення

  • Пальник із попереднім примусовим змішуванням
  • Можливість налаштування на часткову потужність для режиму опалення та приготування гарячої води
  • Вбудована комунікаційна шина eBus
  • Великий об'єм теплообмінника (100л)
  • Дві зворотні лінії системи опалення
  • Місце для вбудовування регулятора
  • Електронне запалювання та контроль за процесом горіння

Креслення конденсаційного котла ecoVIT exclusiv

kondensatsionny napolny kotel ecovit exclusivrazmery1

Позначення:

1. Первинний теплообмінник із нержавіючої сталі
2. Вентиляторна горілка
3. Електромагнітний газовий клапан з покроковим регулюванням
4. NTС – датчики
5. Датчик тяги
6. Лінія, що подає
7. Високотемпературна зворотна лінія
8. Низькотемпературна зворотна лінія
9. Злив конденсату
10. Повітряний клапан

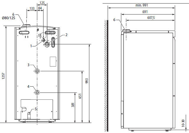
kondensatsionny napolny kotel ecovit exclusivrazmery2

Позначення:

1. Підключення газопроводу (R 3/4”)
2. Подає магістраль контуру опалення (Rp 1”)
3. Зворотна магістраль контуру нагрівання бойлера (Rp 1”)
4. Зворотна магістраль контуру опалення (Rp 1”)
5. Патрубок відведення конденсату
6. Підключення коаксіального димаря

Таблиця характеристик конденсаційного котла ecoVIT exclusiv

kondensatsionny napolny kotel ecovit exclusive технічні harakteristiki

Характеристики
Характеристики
Wi-fi
немає
WIFI модуль
Немає
Артикул
0010007518
Бренд
Vaillant
Вага (кг)
110
Вбудований бак ГВП
Немає
Виробник
Vaillant
Витрата газу (м³/год)
3.49
Витрата газу max (м3/год)
3.49
Габарити (В×Ш×Г, мм)
691 x 570 x 1275
Гарантія (міс)
24
Діаметр підключення опалення (дюйм)
3/4
Кількість контурів
1
ККД
109
ККД (%)
109
Колір
Білий
Країна виробник
Німетчина
Мінімальний тиск газу (бар)
0.02
Матеріал основного теплообмінника
Нержавіюча сталь
Матеріал теплообмінника
Нержавіюча сталь
Об’єм розширювального бака (л)
7
Опалювальна площа (м2)
350
Потужність (кВт)
35
Різьбове з'єднання (дюйми)
3/4
Розміри (Ш × В × Г), мм
691 x 570 x 1275
Розташування
Підлоговий
Теплова потужність (кВт)
35
Тип виробу
Конденсаційний
Тип димоходу
Турбований (коаксіальний)
Тип камери згорання
Турбо (закрита)
Тип керування
Електронний (автоматичний)
ТИП КОТЛА
Конденсаційний
Тип розпалу
Електронний (автоматичний)
Тип теплообмінника
Монотермічний
Тип тяги
Примусова
Тиск газу min (мбар)
0.02
Вопросы и ответы
Добавьте вопрос, и мы ответим в ближайшее время.

Нет вопросов о данном товаре, станьте первым и задайте свой вопрос.